Objektart
Adresse
Objektdaten
Informationen
Ausstattung
Details
Modernes Wohnen trifft grüne Lage - bezugsfreie 2-Zimmer-Wohnung!
Willkommen in der Gartenstadt Olympisches Dorf (G.O.L.D.) in Elstal - einem besonderen Ort, an dem architektonische Qualität, durchdachte Grundrisse und naturnahes Wohnen miteinander verschmelzen. In genau diesem Umfeld liegt diese liebenswerte 2-Zimmer-Wohnung, die nicht nur mit Stil und Effizienz punktet, sondern auch als vermietete Kapitalanlage eine solide Rendite bietet.
.
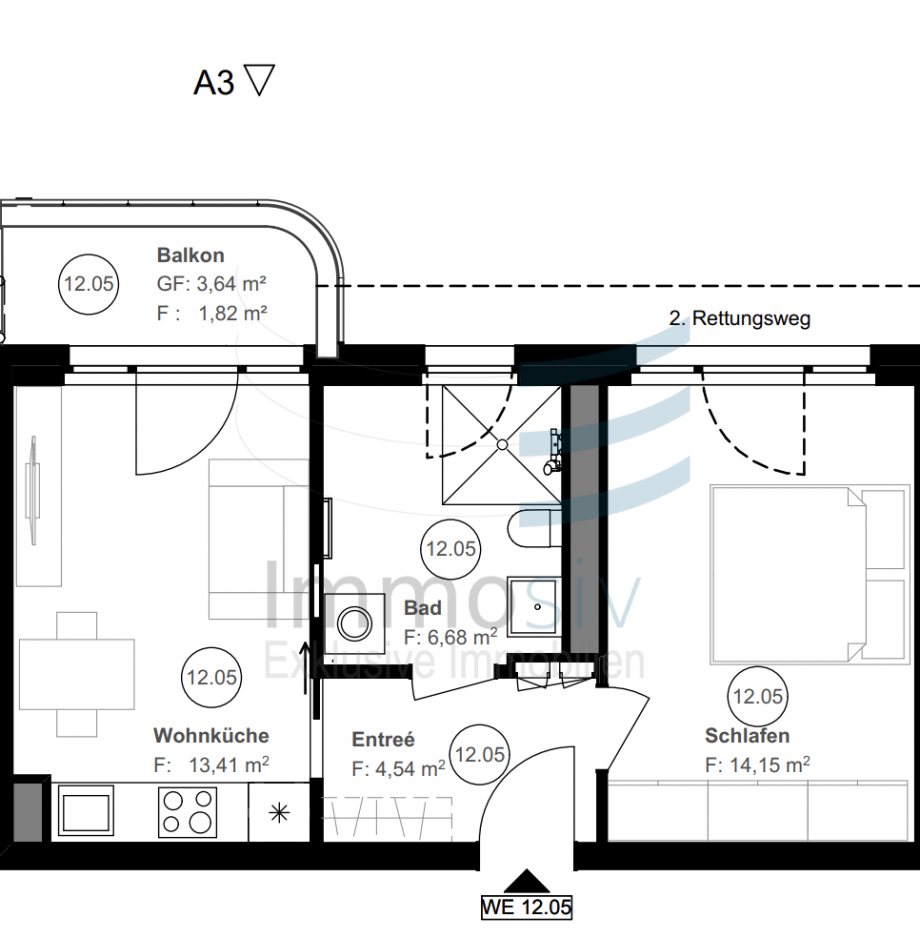
Auf kompakten guten 40,6 m² wurde hier jeder Quadratmeter optimal genutzt: ein sonnendurchflutetes Wohn-/Esszimmer mit offener Küche, ein ruhiges Schlafzimmer, ein modernes Bad, ein praktischer Abstellraum und ein einladender Eingangsbereich - ideal für Singles oder Paare.
.
Das besondere Extra?
Eine große Fensterfront im Wohnbereich mit Zugang zum Balkon, ideal zum Lüften, Entspannen oder um den Blick ins Grüne (momentan weiße) zu genießen - hier wird Wohnqualität neu gedacht.
Auch die bereits eingebaute Einbauküche sowie maßgefertigter Einbauschrank im Schlafzimmer und Garderobenschrank im Flur kommen dem sofortigen Einzug und wohlfühlen entgegen!
Unser Fazit:
Diese Wohnung ist mehr als nur eine Immobilie - sie ist ein cleveres Investment mit attraktiver Ausstattung, langfristiger Vermietbarkeit oder zur Eigennutzung in hervorragender Lage mit bester Anbindung nach Berlin, Nauen oder Potsdam.
Der Stellplatz im Parkhaus (15k Euro) ist bereits im Kaufpreis enthalten.
Für die Küche, Maß-Einbauschrank im Schlafzimmer und Garderobe kommen 14.000,- Euro auf den Kaufpreis hinzu.
Die Fakten auf einen Blick:
.
- Baujahr 2022, Erstvermietung ab 15.01.2023, bezugsfrei zum 01.05.26
- Mietpool (Sonderkündigungsrecht)
- Parkgaragen-Stellplatz (70 EUR/Monat)
- MoveIn-Paket: moderne Einbauküche, Einbauschrank, Garderobe und Badmöbel - alles im Kaufpreis enthalten
- Abstellraum in der Wohnung
- Keller
- Effiziente Fernwärme, Energieeffizienz nach KfW-Standard
Das olympische Dorf Elstal ist ein wahrhaft besonderer Ort! Hier genießen Mieter eine grüne und ruhige Lage im westlichen Berliner Umland, umgeben von ausgedehnten Wäldern und Parks. Die modernen und geräumigen Wohnungen verfügen über Balkone oder Terrassen und sind mit hochwertigen Annehmlichkeiten ausgestattet.
Besonders hervorzuheben ist die erstklassige Verkehrsanbindung: Elstal ist perfekt an den öffentlichen Nahverkehr angebunden und bietet eine schnelle Anbindung an Berlin oder Nauen. So können Mieter die Vorzüge einer idyllischen Umgebung genießen, ohne auf die Annehmlichkeiten der Großstadt zu verzichten. Ein absoluter Traum für alle, die eine hohe Lebensqualität in einer grünen Umgebung suchen!
o in 24 Min. mit dem RE zum Hauptbahnhof Berlin
o in 30 Min. mit dem PKW zum Ku`Damm
o in 30 Min. mit dem PKW ins Zentrum Potsdams
o in 5 Min. in die Natur, z.B. Döberitzer Heide
Provisionspflichtig für den Käufer. Die Provision beträgt 3,57% inkl. 19 % USt. und ist verdient und fällig mit Kaufvertragsunterzeichnung. Es wurde ein Maklervertrag mit dem Verkäufer in gleicher Höhe abgeschlossen.
Alle gemachten Angaben zu Objekten sind ohne Gewähr und basieren ausschließlich auf Informationen, die Immosiv - Exklusive Immobilien von meinem Auftraggeber oder von Dritten übermittelt wurden. Ich übernehme keine Gewähr für die Richtigkeit, die Vollständigkeit, sowie die Aktualität dieser Angaben, insbesondere die Angaben zur Wohnfläche, zur Nutzfläche und zur Aufteilung der Wohn-/Nutzfläche sind von mir nicht durch ein eigenes Aufmaß oder eine eigene Wohnflächenberechnung kontrolliert und die Angaben zum Baujahr sind nicht durch eine Einsicht in die Bauakte überprüft worden. Maßgeblich für den Vertragsgegenstand ist immer der notarielle Kaufvertrag,
Vermögensschaden-Haftpflichtversicherung abgeschlossen bei Hans John GmbH Versicherungsmakler in Hamburg.
